サンビレッジ

5.8万円

管理/共益費 5,500円

愛知県高浜市神明町2丁目

名鉄三河線「吉浜」駅徒歩23分

名鉄三河線「三河高浜」駅徒歩29分

価格
5.8万円 管理/共益費 5,500円
間取り/面積
2LDK/55.44㎡
所在地
愛知県高浜市神明町2丁目
築年
2002年7月(築23年)
駐車
空有
交通

名鉄三河線吉浜」駅 徒歩23分

名鉄三河線三河高浜」駅 徒歩29分

サンビレッジの基本情報

物件名
サンビレッジ
価格
5.8万円
管理/共益費
5,500円
築年月
2002年7月(築23年)
総戸数
4戸
所在地
愛知県高浜市神明町2丁目
交通

名鉄三河線吉浜」駅 徒歩23分

名鉄三河線三河高浜」駅 徒歩29分

サンビレッジの詳細情報

設備条件
  • 閑静な住宅地
  • 駐輪場
  • CATV
  • インターネット対応
  • 宅配ボックス
設備(その他)
    -
駐車場/月額
空有/3,300円
用途地域
-
募集戸数 / 総戸数
- / 4戸
取引態様
一般媒介
備考
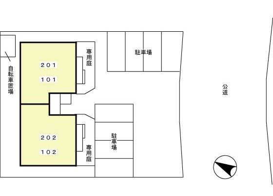
ローソン 高浜神明町店まで徒歩4分と近場にコンビニがあるのもポイント。最上階のアパートです。この物件は1フロア2住戸となっており、独立性も高くプライバシーも守りやすい条件です。大きな地震の対策になる軽量鉄骨の耐震性のある物件です。八大不動産では高浜市内の賃貸情報を多数ご紹介しております。info@hachidaifudousan.comにてご要望やこだわりなどお申し付け下さい。

サンビレッジのコメント(おすすめポイント)

クレジットカードで家賃を決済すると、ポイントがどんどん貯まりますよ。好評の1フロア2住戸の物件なので、アパートの独立性も良好です。風通しが良好なので、いつでも新鮮な空気がはいってきます。軽量鉄骨アパートなので耐久性が高い物件です。八大不動産スタッフが不動産に関してのご質問を、丁寧にお応え致します。0566-52-6063/info@hachidaifudousan.comまでお気軽にご連絡ください。

サンビレッジで募集中の物件

  1. 202

    16.77坪 (55.44㎡)

    5.8万円(3458.56円/坪)

周辺施設

  • デイリーヤマザキ 高浜豊田店の画像

    コンビニエンスストア

    デイリーヤマザキ 高浜豊田店

    141m(2分)

  • 翼幼保園の画像

    幼稚園

    翼幼保園

    242m(4分)

  • ローソン 高浜神明町店の画像

    コンビニエンスストア

    ローソン 高浜神明町店

    310m(4分)

  • ホワイト急便 高浜工場前店の画像

    その他

    ホワイト急便 高浜工場前店

    466m(6分)

  • ワークマン 愛知高浜店の画像

    その他

    ワークマン 愛知高浜店

    517m(7分)

  • 岡崎信用金庫 高浜東支店の画像

    銀行

    岡崎信用金庫 高浜東支店

    524m(7分)

  • おとうふ市場大まめ蔵の画像

    和風料理

    おとうふ市場大まめ蔵

    551m(7分)

  • 泉石油(株) すまいるプラザSSの画像

    ガソリンスタンド

    泉石油(株) すまいるプラザSS

    586m(8分)

  • 辻こどもクリニックの画像

    小児科

    辻こどもクリニック

    594m(8分)

  • キララ歯科の画像

    歯科

    キララ歯科

    680m(9分)

  • 高浜市立翼小学校の画像

    小学校

    高浜市立翼小学校

    690m(9分)

  • 西尾信用金庫高浜支店の画像

    信用金庫

    西尾信用金庫高浜支店

    700m(9分)

  • 中部公園の画像

    公園

    中部公園

    731m(10分)

  • 碧南警察署 吉浜駐在所の画像

    警察

    碧南警察署 吉浜駐在所

    763m(10分)

  • DCM高浜店の画像

    ホームセンター

    DCM高浜店

    780m(10分)

  • GEO高浜店の画像

    レンタルビデオ

    GEO高浜店

    813m(11分)

  • 三洋堂書店 高浜Tポート店の画像

    書店

    三洋堂書店 高浜Tポート店

    837m(11分)

  • ドミー 高浜店の画像

    スーパー

    ドミー 高浜店

    874m(11分)

  • 寺尾内科小児科の画像

    内科

    寺尾内科小児科

    915m(12分)

  • スギ薬局高浜店の画像

    ドラッグストア

    スギ薬局高浜店

    924m(12分)

  • マクドナルド 高浜Tぽーと店の画像

    ファーストフード

    マクドナルド 高浜Tぽーと店

    930m(12分)

近隣の物件

  1. 高浜市神明町6丁目

    1K (30.03㎡)

    4.2万円

  2. 高浜市小池町4丁目

    2LDK (55.44㎡)

    6.8万円

  3. 高浜市屋敷町1丁目

    1R (30.28㎡)

    6万円

  4. 高浜市碧海町4丁目

    2DK (39.44㎡)

    3.9万円

よく見られている物件

  1. 高浜市碧海町4丁目

    2DK (39.44㎡)

    3.9万円

  2. 碧南市鷲林町1丁目

    2DK (45.20㎡)

    4.8万円

  3. 碧南市住吉町4丁目

    1DK (26.28㎡)

    3.4万円

  4. 碧南市新道町4丁目

    1K (30.00㎡)

    3.8万円

サンビレッジ

お気軽にお問い合わせください

LINEからお問い合わせ 無料お問い合わせ

株式会社八大不動産

0566-52-6063

AM9:00~PM4:30

(休:水曜日、祝日)